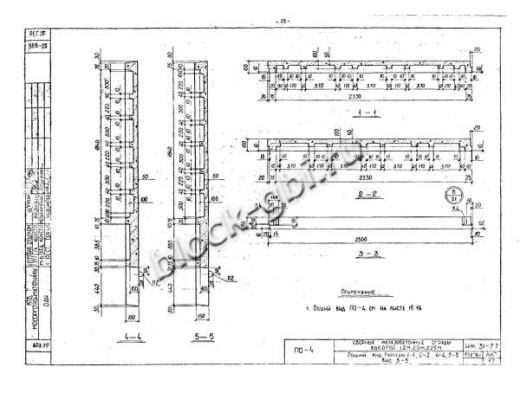
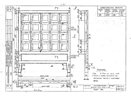
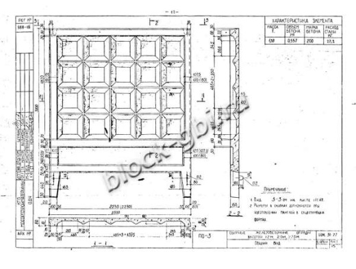
Описание плиты ПО-3
Плита железобетонная (ПО-3) Серия ИЖ 31-77 применяется для устройства перекрытий и покрытий в жилых, общественных и промышленных зданиях. Изделие изготавливается из высокопрочного бетона класса B15 с армированием стальной арматурой, что обеспечивает её прочность, устойчивость к нагрузкам и долговечность.
Применение плиты ПО-3
Плита ПО-3 используется как элемент для строительства межэтажных или чердачных перекрытий, а также покрытий в зданиях различного назначения. Она служит важной частью системы, обеспечивающей надёжность, безопасность и долговечность конструкций. Для монтажа могут применяться дополнительные элементы: раствор, закладные детали и другие комплектующие.
Типы железобетонных плит
Железобетонные плиты подразделяются на несколько типов в зависимости от размеров и назначения:
- ПО: плита опорная;
- ПК: плита круглопустотная;
- ПБ: плита балочная;
- ПГ: плита гладкая;
- ПР: плита ребристая.
Размеры зависят от типа: длина 2500–6000 мм, ширина 190–3000 мм, высота 3000–6000 мм.
Основные параметры, размеры и характеристики
- Длина L, мм: 2500
- Ширина b, мм: 190
- Высота h, мм: 3000
- Масса, тонн: 1,39
- Объем бетона, м³: 0,557
- Геометрический объем, м³: 1,425
- Класс бетона: B15 (марка М200)
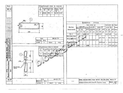
Закладные элементы
- Закладная 1: Каркас 4
- Закладная 2: Каркас 5
- Закладная 3: Каркас 6
- Закладная 4: Сетка 1
Дополнительные характеристики
- Сталь, кг: 27,2
- Марка по морозостойкости: F150–F200
- Марка по водонепроницаемости: W4–W6
- Технология изготовления: вибропрессование или формование с использованием высокопрочного бетона.
Нормы загрузки
- Норма загрузки в автотранспорт 20 т, шт: 14
Документы
- Нормативный документ: Серия ИЖ 31-77
Расшифровка маркировки ПО-3
Маркировка "ПО-3" содержит следующую информацию:
- ПО – плита опорная;
- 3 – порядковый номер типоразмера или классификационный индекс.
Условия транспортировки и хранения
Плиты ПО-3 перевозятся автомобильным или железнодорожным транспортом с использованием специальных захватных устройств (строп). Хранение осуществляется на ровных площадках с твердым покрытием. Плиты устанавливаются горизонтально в штабель высотой не более 2,5 м. Для предотвращения повреждений между изделиями устанавливаются деревянные прокладки.
Контроль качества плиты ПО-3
Каждая плита ПО-3 проходит многоступенчатый контроль качества в соответствии с Серия ИЖ 31-77. Проверяются:
- прочность бетона (не ниже класса B15);
- соответствие геометрических размеров проектным данным;
- качество армирования (наличие арматурного каркаса, толщина защитного слоя бетона);
- морозостойкость и водонепроницаемость бетона;
- точность расположения закладных элементов;
- отсутствие трещин, сколов и других дефектов.
Заключение
Плита ПО-3 – надежный и долговечный элемент для устройства перекрытий и покрытий в зданиях различного назначения. Благодаря строгому соблюдению требований Серия ИЖ 31-77 и использованию качественных материалов, она обеспечивает прочность, устойчивость и долговечность конструкций. Для заказа качественных железобетонных плит обращайтесь к производителям с сертификатами соответствия и опытом работы в сфере ЖБИ, например, компании ГК "БЛОК".
Смотрите также:
| Варианты написания товара |
|---|
| Плита ПО-3 |
| ПО-3 плита |
| Плита ПО3 |
| ПО3 плита |
| ПО-3 |
| ПО3 |
| Плита ПО-3 Серия ИЖ 31-77 |
| ПО-3 Серия ИЖ 31-77 |
| ПО3 Серия ИЖ 31-77 |
|
ГОСТ/Серия
|
Серия ИЖ 31-77 |
|
Длина, мм
|
2500 |
|
Ширина, мм
|
190 |
|
Высота, мм
|
3000 |
|
Масса, тонн
|
1.39 |
|
Объем бетона, куб.м
|
0.557 |
|
Класс бетона
|
В15 |
|
Геометрический объем, м.куб
|
1.425 |
|
Сталь, кг
|
27.2 |
|
Закладная 1
|
Каркас 4 |
|
Закладная 2
|
Каркас 5 |
|
Закладная 3
|
Каркас 6 |
|
Закладная 4
|
Сетка 1 |
Как купить
Процесс покупки железобетонных изделий у нас прост и удобен. Следуйте этим шагам:
- Выбор продукции: Ознакомьтесь с нашим ассортиментом и выберите необходимые железобетонные изделия.
- Консультация: Свяжитесь с нашим менеджером для получения консультации по выбору продукции и уточнения всех деталей. Вы можете позвонить нам или написать на электронную почту.
- Оформление заказа: После согласования всех деталей оформите заказ. Менеджер поможет вам заполнить все необходимые документы.
- Согласование доставки: После оформления заказа наш менеджер свяжется с вами для согласования условий и сроков доставки.
- Оплата: Выберите удобный способ оплаты. Мы предлагаем несколько вариантов, включая безналичный расчет.
- Получение товара: После выполнения всех условий заказа, вы получите железобетонные изделия в назначенное время и по согласованному адресу. При получении подпишите акт приема-передачи.
Если у вас возникли вопросы на любом этапе покупки, не стесняйтесь обращаться к нашим менеджерам!
Оплата
Мы принимаем только безналичные платежи и работаем исключительно с юридическими лицами. Пожалуйста, ознакомьтесь с условиями оплаты ниже:
- Способ оплаты: Все расчеты производятся безналичным путем. Мы не принимаем наличные.
- Счет на оплату: После оформления заказа вам будет выставлен счет, который необходимо оплатить в срок, указанный в документе.
- Реквизиты: Все необходимые банковские реквизиты будут предоставлены в счете. Убедитесь, что все данные указаны правильно для успешного перевода.
- Подтверждение оплаты: После осуществления платежа отправьте нам подтверждение, чтобы мы могли оперативно обработать ваш заказ.
- Получение документов: После полной оплаты вы получите все необходимые документы, включая акт выполненных работ, товарные накладные и сертификаты на продукцию.
Мы работаем с НДС и предоставляем все необходимые сертификаты и документы. Все гарантии будут прописаны в договоре, что обеспечивает прозрачность и надежность сотрудничества.
Если у вас есть вопросы по поводу процесса оплаты, не стесняйтесь обращаться к нашим менеджерам за помощью!
Наша оперативность — ваше удобство. Мы гарантируем своевременную доставку железобетонных изделий, что является ключевым фактором для успешной реализации ваших строительных проектов. Доставка осуществляется прямо к вашему объекту с учетом всех стандартов качества.
Основные условия доставки:
• Выбор тарифа: Вы можете выбрать способ расчета стоимости доставки — почасовой или по зонам.
• Согласование: Менеджер свяжется с вами для уточнения деталей после оформления заказа.
• Время на погрузку: Комплектация товара занимает от 1 до 3 дней в зависимости от объема.
• Акт приема-передачи: Продукция передается по акту приема-передачи.
Тарифы на доставку:
Цены варьируются в зависимости от расстояния и региона. Все тарифы включают НДС. При неблагоприятных погодных условиях возможны небольшие изменения в стоимости.
География доставки:
Мы работаем по всей территории РФ и имеем 12 офисов и производств, чтобы обеспечить удобные условия для доставки.
Для точного расчета стоимости доставки обращайтесь к нашим менеджерам!

