Описание стойки СОН 22-29-1
Стойка (СОН 22-29-1) применяется для устройства опор линий электропередач, освещения и связи. Изделие изготавливается компанией ГК "БЛОК", которая специализируется на производстве и поставке железобетонных изделий в Москве, с использованием высокопрочного бетона класса B30 и армирования стальной арматурой, что обеспечивает её прочность, устойчивость к нагрузкам и долговечность.
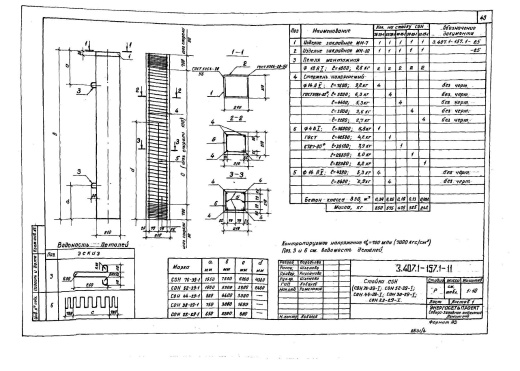
Нормативный документ: Серия 3.407.1-157.
Применение стойки СОН 22-29-1
Стойка СОН 22-29-1 используется для создания надёжных опор линий электропередач, освещения и связи. Она служит важной частью системы, воспринимающей значительные механические нагрузки и воздействия окружающей среды. Для монтажа могут применяться дополнительные элементы: закладные детали, анкерные болты и другие комплектующие.
Типы стоек
Железобетонные стойки подразделяются на несколько типов в зависимости от назначения и конструкции:
- СОН: стойка опорная напрягаемая;
- СО: стойка опорная;
- СУ: стойка усиленная;
- СД: стойка доборная.
Размеры зависят от типа: длина 210–220 мм, ширина 210–220 мм, высота 2200–2250 мм.
Основные параметры, размеры и характеристики
- Длина L, мм: 210
- Ширина b, мм: 210
- Высота h, мм: 2200
- Масса, тонн: 0.24
- Объем бетона, м³: 0.1
- Класс бетона: B30 (марка М400)
- Геометрический объем, м³: 0.09702
- Сталь, кг: 21.6
Закладные элементы
- Закладная 1: Закладная МН-7
- Закладная 2: Закладная МН-10
- Закладная 3: Петля монтажная
- Закладная 4: Стержень напрягаемый
Дополнительные характеристики
- Марка по морозостойкости: F200–F300;
- Марка по водонепроницаемости: W6–W8;
- Технология изготовления: формование с использованием высокопрочного бетона.
Нормы загрузки
- Норма загрузки в автотранспорт 20 т, шт: 83
Расшифровка маркировки СОН 22-29-1
Маркировка "СОН 22-29-1" содержит следующую информацию:
- СОН – стойка опорная напрягаемая;
- 22 – условная длина изделия в дециметрах (2200 мм);
- 29 – условная ширина или диаметр поперечного сечения (210 мм);
- 1 – вариант исполнения или расчетная нагрузка.
Условия транспортировки и хранения
Стойки СОН 22-29-1 перевозятся автомобильным или железнодорожным транспортом с использованием специальных захватных устройств (строп). Хранение осуществляется на ровных площадках с твердым покрытием. Стойки устанавливаются вертикально или горизонтально в зависимости от условий. Для предотвращения повреждений между изделиями устанавливаются деревянные прокладки.
Контроль качества стойки СОН 22-29-1
Каждая стойка СОН 22-29-1 проходит многоступенчатый контроль качества. Проверяются:
- прочность бетона (не ниже класса B30);
- соответствие геометрических размеров проектным данным;
- морозостойкость и водонепроницаемость бетона;
- точность расположения закладных элементов;
- отсутствие трещин, сколов и других дефектов.
Заключение
Стойка СОН 22-29-1 – это надежный и долговечный элемент для устройства опор линий электропередач, освещения и связи. Благодаря использованию качественных материалов и современных технологий производства, она обеспечивает прочность, устойчивость и долговечность конструкций. Для заказа качественных железобетонных изделий обращайтесь к профессионалам своего дела – компании ГК "БЛОК".
Смотрите также:
| Варианты написания товара |
|---|
| Стойка СОН 22-29-1 |
| СОН 22-29-1 стойка |
| Стойка СОН 22-29-1 Серия 3.407.1-157 |
| СОН 22-29-1 Серия 3.407.1-157 |
| СОН 22-29-1 |
| Стойка СОН 22-29-1 ГОСТ |
| СОН 22-29-1 ГОСТ |
|
ГОСТ/Серия
|
Серия 3.407.1-157 |
|
Длина, мм
|
210 |
|
Ширина, мм
|
210 |
|
Высота, мм
|
2200 |
|
Масса, тонн
|
0.24 |
|
Объем бетона, куб.м
|
0.1 |
|
Класс бетона
|
В30 |
|
Геометрический объем, м.куб
|
0.09702 |
|
Сталь, кг
|
21.6 |
|
Закладная 1
|
Закладная МН-7 |
|
Закладная 2
|
Закладная МН-10 |
|
Закладная 3
|
Петля монтажная |
|
Закладная 4
|
Стержень напрягаемый |
Как купить
Процесс покупки железобетонных изделий у нас прост и удобен. Следуйте этим шагам:
- Выбор продукции: Ознакомьтесь с нашим ассортиментом и выберите необходимые железобетонные изделия.
- Консультация: Свяжитесь с нашим менеджером для получения консультации по выбору продукции и уточнения всех деталей. Вы можете позвонить нам или написать на электронную почту.
- Оформление заказа: После согласования всех деталей оформите заказ. Менеджер поможет вам заполнить все необходимые документы.
- Согласование доставки: После оформления заказа наш менеджер свяжется с вами для согласования условий и сроков доставки.
- Оплата: Выберите удобный способ оплаты. Мы предлагаем несколько вариантов, включая безналичный расчет.
- Получение товара: После выполнения всех условий заказа, вы получите железобетонные изделия в назначенное время и по согласованному адресу. При получении подпишите акт приема-передачи.
Если у вас возникли вопросы на любом этапе покупки, не стесняйтесь обращаться к нашим менеджерам!
Оплата
Мы принимаем только безналичные платежи и работаем исключительно с юридическими лицами. Пожалуйста, ознакомьтесь с условиями оплаты ниже:
- Способ оплаты: Все расчеты производятся безналичным путем. Мы не принимаем наличные.
- Счет на оплату: После оформления заказа вам будет выставлен счет, который необходимо оплатить в срок, указанный в документе.
- Реквизиты: Все необходимые банковские реквизиты будут предоставлены в счете. Убедитесь, что все данные указаны правильно для успешного перевода.
- Подтверждение оплаты: После осуществления платежа отправьте нам подтверждение, чтобы мы могли оперативно обработать ваш заказ.
- Получение документов: После полной оплаты вы получите все необходимые документы, включая акт выполненных работ, товарные накладные и сертификаты на продукцию.
Мы работаем с НДС и предоставляем все необходимые сертификаты и документы. Все гарантии будут прописаны в договоре, что обеспечивает прозрачность и надежность сотрудничества.
Если у вас есть вопросы по поводу процесса оплаты, не стесняйтесь обращаться к нашим менеджерам за помощью!
Наша оперативность — ваше удобство. Мы гарантируем своевременную доставку железобетонных изделий, что является ключевым фактором для успешной реализации ваших строительных проектов. Доставка осуществляется прямо к вашему объекту с учетом всех стандартов качества.
Основные условия доставки:
• Выбор тарифа: Вы можете выбрать способ расчета стоимости доставки — почасовой или по зонам.
• Согласование: Менеджер свяжется с вами для уточнения деталей после оформления заказа.
• Время на погрузку: Комплектация товара занимает от 1 до 3 дней в зависимости от объема.
• Акт приема-передачи: Продукция передается по акту приема-передачи.
Тарифы на доставку:
Цены варьируются в зависимости от расстояния и региона. Все тарифы включают НДС. При неблагоприятных погодных условиях возможны небольшие изменения в стоимости.
География доставки:
Мы работаем по всей территории РФ и имеем 12 офисов и производств, чтобы обеспечить удобные условия для доставки.
Для точного расчета стоимости доставки обращайтесь к нашим менеджерам!

