Железобетонное кольцо КО 1 — это плоское опорное изделие высотой 100 мм, диаметром 900/580 мм, весом около 80 кг, выполненное из бетона класса В15 (М200) с армированием и строповочными петлями. Изготовлено по нормам ГОСТ 8020-90/2016, оно предназначено для установки на перекрытия колодцев, обеспечивая точный уровень люка с дорожной поверхностью. Применение кольца гарантирует надежную эксплуатацию инженерных систем — канализационных, водо- и газопроводных, дренажных и коммуникационных колодцев.
Область применения
Кольцо опорное КО 1 используется как элемент сборки крышек колодцев при дорожном и инженерном строительстве. Устанавливаясь поверх железобетонной плиты перекрытия, оно позволяет приподнять люк на 100 мм, предотвращая попадание воды, грязи и механического мусора в колодец. Идеально подходит для городских улиц, дворов, магистралей, а также частных участков, обеспечивая аккуратную и герметичную конструкцию на уровнях дорожного покрытия.
Преимущества
Кольцо КО 1 отличается:
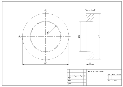
l точными параметрами (внутр. Ø 580 мм, внеш. Ø 900 мм, высота 100 мм), что гарантирует плотное стыковое сопряжение с перекрывающей плитой и люком;
l высокой прочностью – бетон В15, морозостойкость F100, водонепроницаемость W4, армирование стальными прутьями диаметром 6–10 мм;
l удобством монтажа – наличие монтажных петель облегчает подъем и усадку, а точные геометрические допуски (±5–6 мм) упрощают сборку и герметизацию.
Контроль качества
Каждое кольцо проходит строгий контроль: оцениваются прочность бетона, точность геометрии, качество армирования и отсутствие повреждений. Продукция сопровождается паспортом качества и сертификатом соответствия ГОСТ 8020-90/2016, что позволяет её использовать на объектах различного масштаба и назначения.
Условия транспортировки и хранения
Кольца перевозятся горизонтально на платформах и автоприцепах, упакованные штабелями до 3–4 штук с деревянными прокладками. Погрузка — строповкой за монтажные петли, без ударов. Хранение на ровном твердом основании позволяет сохранить форму и предотвращает повреждения.
Где купить кольцо КО 1 с доставкой
Компания Блок-ЖБИ, производитель сертифицированных ЖБИ, предлагает купить кольцо КО 1 напрямую с завода. Мы обеспечим полный комплект документов, техническую консультацию, расчет количества и логистику по Краснодару, России и СНГ. Чтобы приобрести качественное опорное кольцо для люка колодца с гарантией и доставкой — звоните или оставляйте заявку на сайте, и мы быстро организуем отгрузку!
Смотрите также:
| Варианты написания товара |
|---|
| Кольцо опорное КО 1 |
| КО 1 кольцо |
| Кольцо опорное КО1 |
| КО1 кольцо |
| КО 1 |
| КО1 |
| Кольцо опорное КО 1 Серия 3.003.1-1/87 |
| КО 1 Серия 3.003.1-1/87 |
| КО1 Серия 3.003.1-1/87 |
Как купить
Процесс покупки железобетонных изделий у нас прост и удобен. Следуйте этим шагам:
- Выбор продукции: Ознакомьтесь с нашим ассортиментом и выберите необходимые железобетонные изделия.
- Консультация: Свяжитесь с нашим менеджером для получения консультации по выбору продукции и уточнения всех деталей. Вы можете позвонить нам или написать на электронную почту.
- Оформление заказа: После согласования всех деталей оформите заказ. Менеджер поможет вам заполнить все необходимые документы.
- Согласование доставки: После оформления заказа наш менеджер свяжется с вами для согласования условий и сроков доставки.
- Оплата: Выберите удобный способ оплаты. Мы предлагаем несколько вариантов, включая безналичный расчет.
- Получение товара: После выполнения всех условий заказа, вы получите железобетонные изделия в назначенное время и по согласованному адресу. При получении подпишите акт приема-передачи.
Если у вас возникли вопросы на любом этапе покупки, не стесняйтесь обращаться к нашим менеджерам!
Оплата
Мы принимаем только безналичные платежи и работаем исключительно с юридическими лицами. Пожалуйста, ознакомьтесь с условиями оплаты ниже:
- Способ оплаты: Все расчеты производятся безналичным путем. Мы не принимаем наличные.
- Счет на оплату: После оформления заказа вам будет выставлен счет, который необходимо оплатить в срок, указанный в документе.
- Реквизиты: Все необходимые банковские реквизиты будут предоставлены в счете. Убедитесь, что все данные указаны правильно для успешного перевода.
- Подтверждение оплаты: После осуществления платежа отправьте нам подтверждение, чтобы мы могли оперативно обработать ваш заказ.
- Получение документов: После полной оплаты вы получите все необходимые документы, включая акт выполненных работ, товарные накладные и сертификаты на продукцию.
Мы работаем с НДС и предоставляем все необходимые сертификаты и документы. Все гарантии будут прописаны в договоре, что обеспечивает прозрачность и надежность сотрудничества.
Если у вас есть вопросы по поводу процесса оплаты, не стесняйтесь обращаться к нашим менеджерам за помощью!
Наша оперативность — ваше удобство. Мы гарантируем своевременную доставку железобетонных изделий, что является ключевым фактором для успешной реализации ваших строительных проектов. Доставка осуществляется прямо к вашему объекту с учетом всех стандартов качества.
Основные условия доставки:
• Выбор тарифа: Вы можете выбрать способ расчета стоимости доставки — почасовой или по зонам.
• Согласование: Менеджер свяжется с вами для уточнения деталей после оформления заказа.
• Время на погрузку: Комплектация товара занимает от 1 до 3 дней в зависимости от объема.
• Акт приема-передачи: Продукция передается по акту приема-передачи.
Тарифы на доставку:
Цены варьируются в зависимости от расстояния и региона. Все тарифы включают НДС. При неблагоприятных погодных условиях возможны небольшие изменения в стоимости.
География доставки:
Мы работаем по всей территории РФ и имеем 12 офисов и производств, чтобы обеспечить удобные условия для доставки.
Для точного расчета стоимости доставки обращайтесь к нашим менеджерам!

