Описание панели 1ПБ 40.20
Панель железобетонная (1ПБ 40.20) Серия 3.017-3.1 применяется для устройства стеновых ограждений в зданиях и сооружениях различного назначения, таких как промышленные, гражданские и сельскохозяйственные объекты. Изделие изготавливается из высокопрочного бетона с армированием стальной арматурой, что обеспечивает его прочность, устойчивость к нагрузкам и долговечность.
Применение панели 1ПБ 40.20
Панель 1ПБ 40.20 используется как элемент для строительства стеновых ограждений в зданиях и сооружениях различного назначения: промышленных, гражданских, сельскохозяйственных и других инженерных объектах. Она служит важной частью системы, обеспечивающей равномерное распределение нагрузки, защиту от деформаций и долговечность конструкций. Для монтажа могут применяться дополнительные элементы: раствор, закладные детали и другие комплектующие.
Типы панелей
Железобетонные панели подразделяются на несколько типов в зависимости от размеров и назначения:
- ПБ: панель бетонная;
- ПК: панель крупнопанельная;
- ПД: панель доборная;
- ПС: панель стеновая.
Размеры зависят от типа: длина 4000–6000 мм, ширина 160–500 мм, высота 2000–3000 мм.
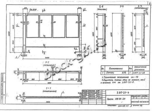
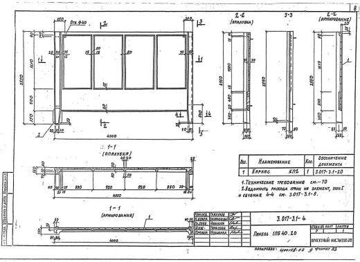
Основные параметры, размеры и характеристики
- Длина L, мм: 4000
- Ширина b, мм: 160
- Высота h, мм: 2000
- Масса, тонн: 1,7
- Объем бетона, м³: 0,5
- Геометрический объем, м³: 1,28
- Расход стали, кг: 37
Закладные детали
- Каркас 2: основной армирующий элемент;
- Каркас 3: усиление конструкции;
- Каркас 4: дополнительное усиление;
- Сетка С2: точечное усиление в ключевых зонах.
Дополнительные характеристики
- Класс бетона: B25 (марка М350)
- Марка по морозостойкости: F200–F300
- Марка по водонепроницаемости: W6–W8
- Технология изготовления: вибропрессование или формование с использованием высокопрочного бетона.
Нормы загрузки
- Норма загрузки в автотранспорт 20 т, шт: 11
Документы
- Нормативный документ: Серия 3.017-3.1
Расшифровка маркировки 1ПБ 40.20
Маркировка "1ПБ 40.20" содержит следующую информацию:
- 1ПБ – панель бетонная первой категории несущей способности;
- 40 – длина панели в дециметрах (4000 мм);
- 20 – высота панели в дециметрах (2000 мм).
Условия транспортировки и хранения
Панели 1ПБ 40.20 перевозятся автомобильным или железнодорожным транспортом с использованием специальных захватных устройств (строп). Хранение осуществляется на ровных площадках с твердым покрытием. Панели устанавливаются вертикально или горизонтально в зависимости от их габаритов. Для предотвращения повреждений между изделиями устанавливаются деревянные прокладки.
Контроль качества панели 1ПБ 40.20
Каждая панель 1ПБ 40.20 проходит многоступенчатый контроль качества в соответствии с Серия 3.017-3.1. Проверяются:
- прочность бетона (не ниже класса B25);
- соответствие геометрических размеров проектным данным;
- качество армирования (наличие арматурного каркаса, толщина защитного слоя бетона);
- морозостойкость и водонепроницаемость бетона;
- точность расположения закладных элементов;
- отсутствие трещин, сколов и других дефектов.
Заключение
Панель 1ПБ 40.20 – надежный и долговечный элемент для устройства стеновых ограждений в зданиях и сооружениях различного назначения. Благодаря строгому соблюдению требований Серия 3.017-3.1 и использованию качественных материалов, она обеспечивает прочность, устойчивость и долговечность конструкций. Для заказа качественных железобетонных панелей обращайтесь к производителям с сертификатами соответствия и опытом работы в сфере ЖБИ.
Смотрите также:
| Варианты написания товара |
|---|
| Панель 1ПБ 40.20 |
| 1ПБ 40.20 панель |
| Панель 1ПБ40.20 |
| 1ПБ40.20 панель |
| 1ПБ 40.20 |
| 1ПБ40.20 |
| Панель 1ПБ 40.20 Серия 3.017-3.1 |
| 1ПБ 40.20 Серия 3.017-3.1 |
| 1ПБ40.20 Серия 3.017-3.1 |
|
ГОСТ/Серия
|
Серия 3.017-3.1 |
|
Длина, мм
|
4000 |
|
Ширина, мм
|
160 |
|
Высота, мм
|
2000 |
|
Масса, тонн
|
1.7 |
|
Объем бетона, куб.м
|
0.5 |
|
Класс бетона
|
В25 |
|
Геометрический объем, м.куб
|
1.28 |
|
Сталь, кг
|
37 |
|
Закладная 1
|
Каркас 2 |
|
Закладная 2
|
Каркас 3 |
|
Закладная 3
|
Каркас 4 |
|
Закладная 4
|
Сетка С2 |
Как купить
Процесс покупки железобетонных изделий у нас прост и удобен. Следуйте этим шагам:
- Выбор продукции: Ознакомьтесь с нашим ассортиментом и выберите необходимые железобетонные изделия.
- Консультация: Свяжитесь с нашим менеджером для получения консультации по выбору продукции и уточнения всех деталей. Вы можете позвонить нам или написать на электронную почту.
- Оформление заказа: После согласования всех деталей оформите заказ. Менеджер поможет вам заполнить все необходимые документы.
- Согласование доставки: После оформления заказа наш менеджер свяжется с вами для согласования условий и сроков доставки.
- Оплата: Выберите удобный способ оплаты. Мы предлагаем несколько вариантов, включая безналичный расчет.
- Получение товара: После выполнения всех условий заказа, вы получите железобетонные изделия в назначенное время и по согласованному адресу. При получении подпишите акт приема-передачи.
Если у вас возникли вопросы на любом этапе покупки, не стесняйтесь обращаться к нашим менеджерам!
Оплата
Мы принимаем только безналичные платежи и работаем исключительно с юридическими лицами. Пожалуйста, ознакомьтесь с условиями оплаты ниже:
- Способ оплаты: Все расчеты производятся безналичным путем. Мы не принимаем наличные.
- Счет на оплату: После оформления заказа вам будет выставлен счет, который необходимо оплатить в срок, указанный в документе.
- Реквизиты: Все необходимые банковские реквизиты будут предоставлены в счете. Убедитесь, что все данные указаны правильно для успешного перевода.
- Подтверждение оплаты: После осуществления платежа отправьте нам подтверждение, чтобы мы могли оперативно обработать ваш заказ.
- Получение документов: После полной оплаты вы получите все необходимые документы, включая акт выполненных работ, товарные накладные и сертификаты на продукцию.
Мы работаем с НДС и предоставляем все необходимые сертификаты и документы. Все гарантии будут прописаны в договоре, что обеспечивает прозрачность и надежность сотрудничества.
Если у вас есть вопросы по поводу процесса оплаты, не стесняйтесь обращаться к нашим менеджерам за помощью!
Наша оперативность — ваше удобство. Мы гарантируем своевременную доставку железобетонных изделий, что является ключевым фактором для успешной реализации ваших строительных проектов. Доставка осуществляется прямо к вашему объекту с учетом всех стандартов качества.
Основные условия доставки:
• Выбор тарифа: Вы можете выбрать способ расчета стоимости доставки — почасовой или по зонам.
• Согласование: Менеджер свяжется с вами для уточнения деталей после оформления заказа.
• Время на погрузку: Комплектация товара занимает от 1 до 3 дней в зависимости от объема.
• Акт приема-передачи: Продукция передается по акту приема-передачи.
Тарифы на доставку:
Цены варьируются в зависимости от расстояния и региона. Все тарифы включают НДС. При неблагоприятных погодных условиях возможны небольшие изменения в стоимости.
География доставки:
Мы работаем по всей территории РФ и имеем 12 офисов и производств, чтобы обеспечить удобные условия для доставки.
Для точного расчета стоимости доставки обращайтесь к нашим менеджерам!

