Железобетонные элементы сводов без затяжек ЭР 30-3 представляют собой несущие железобетонные пространственные конструкции покрытия в виде изогнутых вдоль оси плит, обладающих распором и работающих на сжатие с изгибом. Своды применяются при создании ЖБИ оболочек, складок и других тонкостенных пространственных конструкций в качестве покрытий и перекрытий зданий, мостов и сооружений гражданского, промышленного и сельскохозяйственного строительства.
Тонкостенными пространственными конструкциями называют такие конструкции, пространственная форма которых обеспечивает их жесткость и устойчивость, что позволяет их толщину доводить до минимальных размеров, то есть – ширина конструкций значительно меньше их длины и высоты. Основное преимущество использования этих изделий выражено в следующем: высокопрочные железобетонные элементы сводов без затяжек ЭР 30-3 позволяют перекрывать значительные пространства без применения дополнительных промежуточных опор.
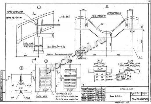
Железобетонные элементы сводов без затяжек ЭР 30-3 проектируются, как правило, из железобетонных элементов для прямоугольных в плане однопролетных или многопролетных зданий. По продольным краям вдоль образующей своды могут опираться на колонны, стены или непосредственно на фундаменты. Распор сводов и другие возникающие усилия воспринимаются поперечными стенами, рамами, контрфорсами или фундаментами, поэтому при проектировании сводов следует учитывать податливость элементов или конструкций, воспринимающих распор. Уменьшение податливости поперечных стен, контрфорсов и фундаментов может быть обеспечено установкой затяжек, расположенных ниже уровня пола.
Железобетонные элементы сводов без затяжек ЭР 30-3 должны сохранять несущую способность даже при локальных повреждениях, их конструкция должна быть способна предотвращать лавинообразные обрушения системы вследствие разрушения второстепенных элементов конструкции, узлов и деталей (связи, элементы, обеспечивающие устойчивость «ключевых» конструкций, и т.п.). Устойчивость здания против лавинообразного обрушения обеспечивают применением соответствующих конструктивных мер и материалов, в том числе способствующих развитию в конструктивных элементах и их соединениях пластических деформаций; рациональным решением системы связей и элементов соединений. Специальное внимание уделяют расчетам и конструированию узлов, выполняя их равнопрочными сопрягаемым элементам.
Железобетонные элементы сводов без затяжек ЭР 30-3 изготавливаются из тяжелого бетона классом по прочности на сжатие от В15 методом виброформования. Для приготовления бетонной смеси используется портландцемент. В качестве мелкого заполнителя применяются природные кварцевые пески и дробленые пески, получаемые из твердых каменных пород. В качестве крупного заполнителя следует применять щебень. Крупность зерен должна быть не более 15 мм. Марка бетона по морозостойкости и водонепроницаемости назначается в конкретном проекте в зависимости от режима эксплуатации конструкций и климатических условий района строительства согласно СНиП II-21-75 – не ниже F75 и W8 соответственно.
Бетонные элементы сводов без затяжек ЭР 30-3, испытывая гигантские нагрузки, должны быть армированы только преднапряженной сталью. В качестве напрягаемой арматуры следует применять арматуру классов А-V и A-IV, марок 23Х2Г2Т и 20ХГ2Ц соответственно. Допускается применение стержневой арматуры класса А-III, марки 35ГС или 25Г2С, которую дополнительно упрочняют вытяжкой с контролем напряжений и удлинений. Для сварных сеток и каркасов применяют арматурную проволоку периодического профиля класса Вр-I – при диаметре стержней до 5 мм, А-III – при диаметре стержней 6 мм и более. Открытые поверхности закладных изделий дополнительно защищают антикоррозийным покрытием.
Отклонения от номинальных проектных размеров сводов по длине не должны превышать ±15 мм, по ширине и высоте ±5 мм, по толщине сечения ±2 мм. На поверхностях изделий не допускается жировые и ржавые пятна. Отклонения фактической массы не должны превышать 7%.
Железобетонные элементы сводов без затяжек ЭР 30-3 должны храниться на стеллажах с укладкой их в рабочем положении на консоли или металлические балки. Опирание плит разрешается только на стальные анкера в 4х углах плит. При хранении сводов в один ряд по высоте, на выровненной поверхности пола под угловые анкера должны быть уложены деревянные прокладки шириной 200 мм и длиной не менее 300 мм. Все прокладки должны иметь одинаковую толщину не менее 50 мм.
Железобетонные элементы сводов без затяжек ЭР 30-3 имеют также серьезные требования к транспортировке, погрузке, разгрузке и монтажу. Эти процессы должны производиться с применением специальных траверс, обеспе
чивающих одновременный захват крюками на тросах за 4 угловых анкера. Транспортируются своды на специализированных автоплитовозах для перевозки сводчатых плит размером на пролет, имеющих жесткую на изгиб и кручение грузовую платформу шириной не менее 18 мм. Укладка должна производиться в рабочем положении на прокладки, расположенные только под опорными угловыми анкерами, которые должны быть очищены от загрязнений, а в зимнее время – от снега и льда. Своды железобетонные при перевозке должны быть надежно закреплены на платформе от смещений в продольном и поперечном направлениях.
В компании ГК “БЛОК” можно заказать железобетонные элементы сводов без затяжек ЭР 30-3, а также проконсультироваться с нашими специалистами, подобрать требуемые конструкции железобетонных изделий. В нашем отделе продаж можно узнать заранее и уточнить цену и рассчитать общую стоимость заказа. Купить железобетонные элементы сводов без затяжек ЭР 30-3 и проконсультироваться по общим вопросам покупки и доставки Вы можете, позвонив по телефонам компании ГК БЛОК: Санкт-Петербург: (812) 309-22-09, Москва: (495) 646-38-32, Краснодар: (861) 279-36-00. Режим работы компании: Пн.-Сб. с 9-00 до 18-00. Компания ГК БЛОК осуществляет доставку железобетонных сводов элементы сводов без затяжек ЭР 30-3 по всей России прямо до объекта заказчика или на строительную площадку, если позволяет инфраструктура.
|
ГОСТ/Серия
|
Серия 1.266.1-2 |
|
Длина, мм
|
16308 |
|
Ширина, мм
|
1980 |
|
Высота, мм
|
1243 |
|
Масса, тонн
|
3.16 |
|
Объем бетона, куб.м
|
1.32 |
|
Класс бетона
|
В22,5 |
|
Геометрический объем, м.куб
|
Серия 1.266.1-2 |
Как купить
Процесс покупки железобетонных изделий у нас прост и удобен. Следуйте этим шагам:
- Выбор продукции: Ознакомьтесь с нашим ассортиментом и выберите необходимые железобетонные изделия.
- Консультация: Свяжитесь с нашим менеджером для получения консультации по выбору продукции и уточнения всех деталей. Вы можете позвонить нам или написать на электронную почту.
- Оформление заказа: После согласования всех деталей оформите заказ. Менеджер поможет вам заполнить все необходимые документы.
- Согласование доставки: После оформления заказа наш менеджер свяжется с вами для согласования условий и сроков доставки.
- Оплата: Выберите удобный способ оплаты. Мы предлагаем несколько вариантов, включая безналичный расчет.
- Получение товара: После выполнения всех условий заказа, вы получите железобетонные изделия в назначенное время и по согласованному адресу. При получении подпишите акт приема-передачи.
Если у вас возникли вопросы на любом этапе покупки, не стесняйтесь обращаться к нашим менеджерам!
Оплата
Мы принимаем только безналичные платежи и работаем исключительно с юридическими лицами. Пожалуйста, ознакомьтесь с условиями оплаты ниже:
- Способ оплаты: Все расчеты производятся безналичным путем. Мы не принимаем наличные.
- Счет на оплату: После оформления заказа вам будет выставлен счет, который необходимо оплатить в срок, указанный в документе.
- Реквизиты: Все необходимые банковские реквизиты будут предоставлены в счете. Убедитесь, что все данные указаны правильно для успешного перевода.
- Подтверждение оплаты: После осуществления платежа отправьте нам подтверждение, чтобы мы могли оперативно обработать ваш заказ.
- Получение документов: После полной оплаты вы получите все необходимые документы, включая акт выполненных работ, товарные накладные и сертификаты на продукцию.
Мы работаем с НДС и предоставляем все необходимые сертификаты и документы. Все гарантии будут прописаны в договоре, что обеспечивает прозрачность и надежность сотрудничества.
Если у вас есть вопросы по поводу процесса оплаты, не стесняйтесь обращаться к нашим менеджерам за помощью!
Наша оперативность — ваше удобство. Мы гарантируем своевременную доставку железобетонных изделий, что является ключевым фактором для успешной реализации ваших строительных проектов. Доставка осуществляется прямо к вашему объекту с учетом всех стандартов качества.
Основные условия доставки:
• Выбор тарифа: Вы можете выбрать способ расчета стоимости доставки — почасовой или по зонам.
• Согласование: Менеджер свяжется с вами для уточнения деталей после оформления заказа.
• Время на погрузку: Комплектация товара занимает от 1 до 3 дней в зависимости от объема.
• Акт приема-передачи: Продукция передается по акту приема-передачи.
Тарифы на доставку:
Цены варьируются в зависимости от расстояния и региона. Все тарифы включают НДС. При неблагоприятных погодных условиях возможны небольшие изменения в стоимости.
География доставки:
Мы работаем по всей территории РФ и имеем 12 офисов и производств, чтобы обеспечить удобные условия для доставки.
Для точного расчета стоимости доставки обращайтесь к нашим менеджерам!

