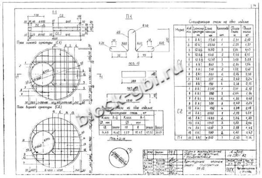
Железобетонная плита ПК 15 — это прочный элемент, предназначенный для перекрытия колодцев диаметром 700 мм. Она применяется в системах канализации, водоотведения, ливневой и дренажной сети, обеспечивая защиту подземных коммуникаций от внешнего воздействия и механических повреждений. Изделие изготавливается по ГОСТ 8020-90 из тяжелого бетона класса не ниже В15, что гарантирует высокую прочность и стойкость к неблагоприятным условиям эксплуатации. Конструкция предусматривает посадочное отверстие под люк, что облегчает доступ к обслуживанию инженерных систем.
Область применения
Плита перекрытия ПК 15 используется при строительстве и ремонте инженерных колодцев в частных, коммерческих и муниципальных объектах. Она устанавливается на железобетонные кольца диаметром 0,7 м и обеспечивает завершение шахты с возможностью установки люка. Такое решение особенно актуально для колодцев, находящихся на проезжей части, во дворах, пешеходных зонах и других местах, где требуется защита коммуникаций от повреждений транспортом, осадками и грунтовыми водами. ПК 15 применяют в канализационных, телефонных, смотровых и дренажных системах.
Преимущества плиты ПК 15
ЖБ плита ПК 15 обладает целым рядом эксплуатационных преимуществ. Высокая несущая способность и стойкость к износу обеспечиваются за счёт качественного бетона и армирования. Изделие выдерживает воздействие влаги, мороза, механических нагрузок, сохраняя форму и прочность на протяжении десятилетий. Посадочное отверстие под люк унифицировано под стандартные размеры крышек, что упрощает монтаж. Компактные размеры и вес позволяют выполнять установку с минимальным участием спецтехники, а точность геометрии гарантирует плотную посадку на кольцо.
Контроль качества
Каждая плита перекрытия ПК 15 проходит обязательную проверку на всех этапах производства. Контролируется состав бетонной смеси, толщина защитного слоя, точность формовки и отсутствие дефектов. Также проводится проверка соответствия изделия нормативным документам — в первую очередь ГОСТ 8020-90. На выходе продукция демонстрирует отличные показатели прочности, водонепроницаемости и устойчивости к агрессивным воздействиям окружающей среды.
Условия транспортировки и хранения
Плиты ПК 15 перевозятся с помощью автотранспорта с использованием подъемной техники и такелажных приспособлений. Для предотвращения повреждений при транспортировке используются деревянные прокладки и фиксаторы. Хранение плит осуществляется на ровной, твердой поверхности, укладка допускается в несколько ярусов при наличии прокладок между изделиями. Соблюдение условий хранения позволяет сохранить целостность конструкции и готовность к монтажу без дополнительной доработки.
Где купить плиту ПК 15 по выгодной цене
Вы можете купить плиту перекрытия ПК 15 с гарантией качества и быстрой доставкой в интернет-магазине Блок-ЖБИ. Мы предлагаем продукцию, соответствующую ГОСТ и прошедшую производственный контроль, по ценам от производителя. Сделайте заказ онлайн или свяжитесь с нашими менеджерами — поможем рассчитать объем поставки, подобрать совместимые элементы и организуем доставку на объект точно в срок.
Смотрите также:
| Варианты написания товара |
|---|
| Крышка колодца ПК-15 |
| Плита крышки колодца ПК-15 |
| ПК-15 крышка |
| Крышка колодца ПК15 |
| ПК15 крышка |
| ПК-15 |
| ПК15 |
| Крышка колодца ПК-15 Альбом РК 2201-82 |
| ПК-15 Альбом РК 2201-82 |
| ПК15 Альбом РК 2201-82 |
|
ГОСТ/Серия
|
Альбом РК 2201-82 |
|
Длина, мм
|
1720 |
|
Ширина, мм
|
1720 |
|
Высота, мм
|
140 |
|
Масса, тонн
|
0.68 |
|
Объем бетона, куб.м
|
0.27 |
|
Класс бетона
|
В22,5 |
|
Геометрический объем, м.куб
|
0.325 |
|
Сталь, кг
|
31.47 |
|
Закладная 1
|
Сетка С1 |
|
Закладная 2
|
Сетка С2 |
|
Закладная 3
|
Петля П1 |
Как купить
Процесс покупки железобетонных изделий у нас прост и удобен. Следуйте этим шагам:
- Выбор продукции: Ознакомьтесь с нашим ассортиментом и выберите необходимые железобетонные изделия.
- Консультация: Свяжитесь с нашим менеджером для получения консультации по выбору продукции и уточнения всех деталей. Вы можете позвонить нам или написать на электронную почту.
- Оформление заказа: После согласования всех деталей оформите заказ. Менеджер поможет вам заполнить все необходимые документы.
- Согласование доставки: После оформления заказа наш менеджер свяжется с вами для согласования условий и сроков доставки.
- Оплата: Выберите удобный способ оплаты. Мы предлагаем несколько вариантов, включая безналичный расчет.
- Получение товара: После выполнения всех условий заказа, вы получите железобетонные изделия в назначенное время и по согласованному адресу. При получении подпишите акт приема-передачи.
Если у вас возникли вопросы на любом этапе покупки, не стесняйтесь обращаться к нашим менеджерам!
Оплата
Мы принимаем только безналичные платежи и работаем исключительно с юридическими лицами. Пожалуйста, ознакомьтесь с условиями оплаты ниже:
- Способ оплаты: Все расчеты производятся безналичным путем. Мы не принимаем наличные.
- Счет на оплату: После оформления заказа вам будет выставлен счет, который необходимо оплатить в срок, указанный в документе.
- Реквизиты: Все необходимые банковские реквизиты будут предоставлены в счете. Убедитесь, что все данные указаны правильно для успешного перевода.
- Подтверждение оплаты: После осуществления платежа отправьте нам подтверждение, чтобы мы могли оперативно обработать ваш заказ.
- Получение документов: После полной оплаты вы получите все необходимые документы, включая акт выполненных работ, товарные накладные и сертификаты на продукцию.
Мы работаем с НДС и предоставляем все необходимые сертификаты и документы. Все гарантии будут прописаны в договоре, что обеспечивает прозрачность и надежность сотрудничества.
Если у вас есть вопросы по поводу процесса оплаты, не стесняйтесь обращаться к нашим менеджерам за помощью!
Наша оперативность — ваше удобство. Мы гарантируем своевременную доставку железобетонных изделий, что является ключевым фактором для успешной реализации ваших строительных проектов. Доставка осуществляется прямо к вашему объекту с учетом всех стандартов качества.
Основные условия доставки:
• Выбор тарифа: Вы можете выбрать способ расчета стоимости доставки — почасовой или по зонам.
• Согласование: Менеджер свяжется с вами для уточнения деталей после оформления заказа.
• Время на погрузку: Комплектация товара занимает от 1 до 3 дней в зависимости от объема.
• Акт приема-передачи: Продукция передается по акту приема-передачи.
Тарифы на доставку:
Цены варьируются в зависимости от расстояния и региона. Все тарифы включают НДС. При неблагоприятных погодных условиях возможны небольшие изменения в стоимости.
География доставки:
Мы работаем по всей территории РФ и имеем 12 офисов и производств, чтобы обеспечить удобные условия для доставки.
Для точного расчета стоимости доставки обращайтесь к нашим менеджерам!

