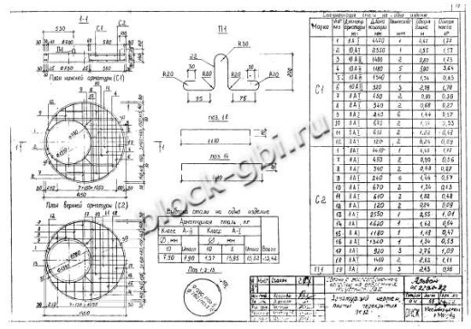
Железобетонная плита ПК-12 предназначена для перекрытия колодцев с внутренним диаметром 700 мм. Изделие используется при обустройстве инженерных коммуникаций, канализационных и водопроводных систем, ливнёвок и смотровых шахт. Плита создаёт прочное и герметичное завершение колодезной шахты, позволяя безопасно установить чугунный люк или другие элементы верхней части конструкции. Модель производится из тяжёлого бетона, армированного стальной сеткой, что обеспечивает долговечность, устойчивость к нагрузкам и воздействию влаги. Изделие полностью соответствует строительным нормативам и ГОСТ.
Область применения
Плита ПК-12 используется при строительстве колодцев на объектах водоснабжения, канализации, ливневой и дренажной системы. Её устанавливают на верхнее кольцо колодца диаметром 0,7 м, что позволяет обеспечить плотное перекрытие и надёжное основание под установку люка. Изделие подходит для монтажа в городской среде, на автодорогах, тротуарах, дворовых территориях и промышленных площадках. Благодаря универсальной конструкции, плита может применяться в условиях высокой влажности и перепадов температур, сохраняя геометрию и прочность.
Преимущества изделия
Плита перекрытия ПК-12 обладает рядом эксплуатационных достоинств. Армированная бетонная основа обеспечивает высокую несущую способность, устойчивость к механическим и климатическим нагрузкам. Изделие имеет ровную поверхность и точную геометрию, что облегчает установку и сопряжение с остальными элементами колодца. Герметичность и плотность стыков позволяют минимизировать теплопотери и защитить подземные коммуникации от промерзания или затопления. Благодаря заводскому контролю качества плита надёжна и рассчитана на многолетнюю эксплуатацию.
Контроль качества
Изготовление плиты ПК-12 ведётся строго по требованиям ГОСТ и технологическим картам предприятия. В процессе производства контролируется марка бетона, правильность армирования, толщина защитного слоя, морозостойкость и водонепроницаемость материала. Готовые изделия проходят визуальный осмотр на наличие трещин, сколов и других дефектов. Каждый элемент поставляется с паспортом качества и готов к немедленному использованию на строительной площадке.
Условия транспортировки и хранения
Для доставки плиты ПК-12 используется автотранспорт с подъёмной техникой. Перевозка осуществляется с использованием мягких стропов и прокладок, исключающих механические повреждения. Хранение изделий проводится на твёрдом основании с прокладками между слоями. Плиты укладываются в штабель высотой, не превышающей допустимую по технике безопасности. При соблюдении этих условий изделие сохраняет все заявленные характеристики вплоть до момента монтажа.
Где купить плиту ПК-12
Компания «Блок-ЖБИ» предлагает купить плиту перекрытия ПК-12 напрямую от производителя. Мы гарантируем соответствие продукции ГОСТ, наличие необходимой документации и технических характеристик. В каталоге представлен широкий выбор ЖБИ для обустройства колодцев. Организуем быструю доставку по Краснодару и в другие регионы, поможем с подбором комплектующих и расчётом объёмов. Чтобы заказать надёжную плиту ПК-12 — свяжитесь с нашими менеджерами или оформите заявку через сайт.
Смотрите также:
| Варианты написания товара |
|---|
| Плита перекрытия колодца ПК-12 |
| ПК-12 плита |
| Плита перекрытия колодца ПК12 |
| ПК12 плита |
| ПК-12 |
| ПК12 |
| Плита перекрытия колодца ПК-12 Альбом РК 2201-82 |
| ПК-12 Альбом РК 2201-82 |
| ПК12 Альбом РК 2201-82 |
|
ГОСТ/Серия
|
Альбом РК 2201-82 |
|
Длина, мм
|
1450 |
|
Ширина, мм
|
1450 |
|
Высота, мм
|
140 |
|
Масса, тонн
|
0.45 |
|
Объем бетона, куб.м
|
0.18 |
|
Класс бетона
|
В22,5 |
|
Геометрический объем, м.куб
|
0.231 |
|
Сталь, кг
|
23.42 |
|
Закладная 1
|
Сетка С1 |
|
Закладная 2
|
Сетка С2 |
|
Закладная 3
|
Петля П1 |
Как купить
Процесс покупки железобетонных изделий у нас прост и удобен. Следуйте этим шагам:
- Выбор продукции: Ознакомьтесь с нашим ассортиментом и выберите необходимые железобетонные изделия.
- Консультация: Свяжитесь с нашим менеджером для получения консультации по выбору продукции и уточнения всех деталей. Вы можете позвонить нам или написать на электронную почту.
- Оформление заказа: После согласования всех деталей оформите заказ. Менеджер поможет вам заполнить все необходимые документы.
- Согласование доставки: После оформления заказа наш менеджер свяжется с вами для согласования условий и сроков доставки.
- Оплата: Выберите удобный способ оплаты. Мы предлагаем несколько вариантов, включая безналичный расчет.
- Получение товара: После выполнения всех условий заказа, вы получите железобетонные изделия в назначенное время и по согласованному адресу. При получении подпишите акт приема-передачи.
Если у вас возникли вопросы на любом этапе покупки, не стесняйтесь обращаться к нашим менеджерам!
Оплата
Мы принимаем только безналичные платежи и работаем исключительно с юридическими лицами. Пожалуйста, ознакомьтесь с условиями оплаты ниже:
- Способ оплаты: Все расчеты производятся безналичным путем. Мы не принимаем наличные.
- Счет на оплату: После оформления заказа вам будет выставлен счет, который необходимо оплатить в срок, указанный в документе.
- Реквизиты: Все необходимые банковские реквизиты будут предоставлены в счете. Убедитесь, что все данные указаны правильно для успешного перевода.
- Подтверждение оплаты: После осуществления платежа отправьте нам подтверждение, чтобы мы могли оперативно обработать ваш заказ.
- Получение документов: После полной оплаты вы получите все необходимые документы, включая акт выполненных работ, товарные накладные и сертификаты на продукцию.
Мы работаем с НДС и предоставляем все необходимые сертификаты и документы. Все гарантии будут прописаны в договоре, что обеспечивает прозрачность и надежность сотрудничества.
Если у вас есть вопросы по поводу процесса оплаты, не стесняйтесь обращаться к нашим менеджерам за помощью!
Наша оперативность — ваше удобство. Мы гарантируем своевременную доставку железобетонных изделий, что является ключевым фактором для успешной реализации ваших строительных проектов. Доставка осуществляется прямо к вашему объекту с учетом всех стандартов качества.
Основные условия доставки:
• Выбор тарифа: Вы можете выбрать способ расчета стоимости доставки — почасовой или по зонам.
• Согласование: Менеджер свяжется с вами для уточнения деталей после оформления заказа.
• Время на погрузку: Комплектация товара занимает от 1 до 3 дней в зависимости от объема.
• Акт приема-передачи: Продукция передается по акту приема-передачи.
Тарифы на доставку:
Цены варьируются в зависимости от расстояния и региона. Все тарифы включают НДС. При неблагоприятных погодных условиях возможны небольшие изменения в стоимости.
География доставки:
Мы работаем по всей территории РФ и имеем 12 офисов и производств, чтобы обеспечить удобные условия для доставки.
Для точного расчета стоимости доставки обращайтесь к нашим менеджерам!

